Concept
コンセプト
貸切別荘での
優雅なひとときを
淡路島にある、開放感抜群の庭付き別荘です。
広いダイニングで仲間と過ごしたり、お庭でBBQ(電気グリル)も可能です。
ペットも可能なので、施設内は自由にご利用いただけます。
また、窓から見える美しい景色は都会の喧騒を忘れさせてくれます。
貸切別荘での優雅なひとときをお楽しみください。
Floor
フロアのご紹介
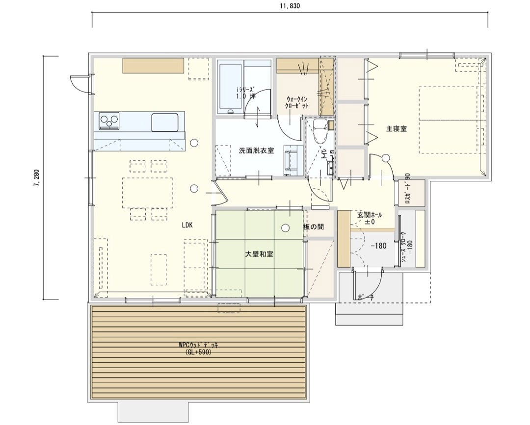
和室がある2LDK
車は最大で3台駐車できます。
建物はペットや人にも優しい平屋1階建て。
大自然に囲まれたこちらの別荘は四季を存分に感じられる場所です。
お部屋にはモダンなデザインの家具、最新の家電を揃えておりますので別荘地での優雅なひとときをお過ごしください。
寝室ではプロジェクターのポップインアラジンもございますので、大自然の中で周囲を気にすることなく、映画をお楽しみください。
リビングからの緑を眺めながら、リモートワークもおすすめです。
寝室は2つございます。洋室にはセミダブルベッドが2つ、和室には布団が4組ございますので、小さなお子様の滞在も可能です。
最大6名の滞在が可能です。
お庭で電気グリルでのバーベキューが可能です。
EV車が充電出来るコンセントがございます。
ワンちゃん連れの方は、サークル一回、足拭き、ペットシーツがございますのでご利用いただけます。
- ご利用人数
- 1〜6名
- 駐車場
- 1〜3台、EV車充電コンセント
- ベッド
- セミダブルベッド×2、布団×4
- Wi-Fi
- 共用エリア(無料)
- 設備・アメニティ
- EV車充電コンセント、エアコン、読書灯、加湿空気清浄機、TV、電気ケトル、冷蔵庫、オーブンレンジ、オーブントースター、炊飯器、電気グリル、歯ブラシ、ヘアブラシ、バスアメニティ、カミソリ、タオル、ドライヤー、ハンガー、ソファ、スリッパ
- 水回り
- ダブルシンク、バスタブ、シャワー、バス・トイレ・洗面台別、洗面台、洗浄機能付きトイレ、バスルーム
- その他
- ペット可、全エリア禁煙
- 庭全体に人工芝が敷かれており、大きなドッグランとして小型犬〜超大型犬まで大満足のスペースが確保されています。
人工芝なので雨上がりなどで濡れていても足が汚れる心配がありません。
また、小さなお子様も安心して走り回って遊ぶことができます。
階段状に作られたウッドデッキは安全に上り下りでき、海を眺めながらティータイムを楽しむ事ができます。
テラスには炭が要らない電気グリルも用意してありますので、BBQも気軽に楽しめます。
海に沈む夕陽を思う存分堪能してください。
- 広々としたリビングは和室とつながっており、ソファや畳でのびのびとくつろぐことができます。
ダイニングからも海が見えるので、サンセットを眺めながらお食事ができ非日常を味わえます。
ウッドデッキへの出入りも可能なので、わんちゃんやお子様もすぐに庭へ遊びに行くことができます。
和室の棚にはワンちゃんグッズが備えてありますのでご自由にお使いください。
- 広々としたキッチンには、食器類、冷蔵庫、炊飯器、トースター、電子レンジ、電気ケトルの調理器具が一式揃っています。
IHコンロはもちろんグリルと食洗機も設置されているので、ご自宅のようにお使いいただけます。
開放的なオープンキッチンからは、リビングや庭、海までが一望でき、キッチンに立ちながらも庭で遊ぶお子さんやわんちゃんの様子をご覧いただけます。
- 足を伸ばしてゆったりと浸かれる湯船。
脱衣所の棚にはアメニティが揃っており、スキンケア用品、ドライヤーなどもご自由にお使いいただけます。
洗濯乾燥機も設置してありますので、海水浴後の水着や衣類を洗うこともできます。
- 寝室にはセミダブルのベッドが2つ。
大人の方2人、小さなお子様も一緒に寝られる広さなので、ご家族全員で寝ることができます。
天井に設置されたプロジェクター使えば、テレビとは違った臨場感を味わえます。
- 車3台まで停めることができる駐車場。
荷物の積み下ろしの際は、備え付けのベンチをご利用ください。
家の側面に充電用のコンセントが設置してあるので、EV車でも安心してお越しください。
玄関にスリッパを置いてますので、周辺散策やわんちゃんの散歩のときにお使いいただけます。
Access
アクセス
- 所在地
- 〒656-1344 兵庫県洲本市五色町鳥飼浦2599-894
- 車でお越しの場合
- 西淡三原ICから約10分です。
- バスでお越しの場合
- 五色浜バス停から徒歩で約5分です。
Neighborhood
周辺施設




























